Overview
- Updated On:
- April 25, 2026
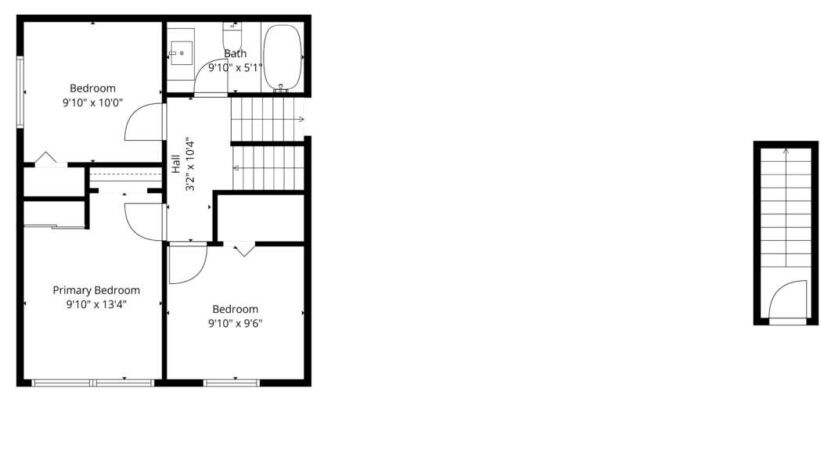
- 6 Bedrooms
Property Description
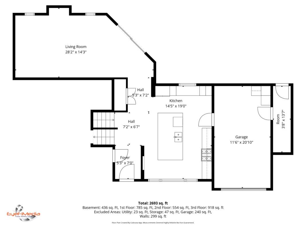
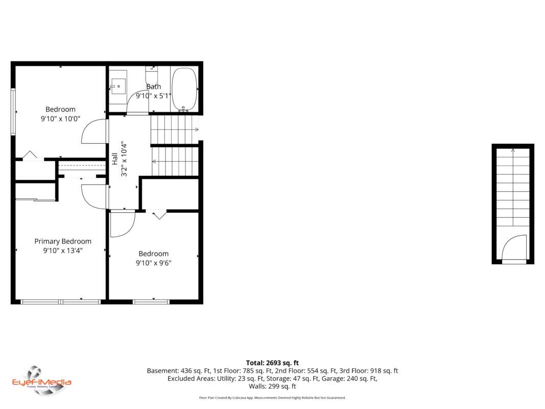
Welcome to 19 Woodland Drive, a beautifully updated family home located in a highly desirable area of Cambridge, backing directly onto Churchill Park. Set on a generous lot in a mature neighbourhood, this property offers privacy, space, and an exceptional lifestyle. Boasting approximately 2,480 sq ft of living space, this home features 5 spacious bedrooms and 3 bathrooms, ideal for growing families or multi-generational living. A thoughtfully designed addition completed in 2019 enhances both functionality and modern appeal. The heart of the home is the stunning new kitchen, complete with a large island, perfect for entertaining, family gatherings, and everyday living. The home also includes a full in-law suite with a separate entrance, offering excellent flexibility as a mortgage helper or private space for extended family. Step outside to your own backyard oasis, professionally landscaped and designed for entertaining. Enjoy summers in the heated in-ground saltwater pool, unwind by the outdoor fireplace, and take in the peaceful setting with no rear neighbours. Additional highlights include an attached garage, private driveway, and a prime location close to parks, schools, and amenities. A rare opportunity to own a turn-key home in one of Cambridge’s most sought-after neighbourhoods.
































































































































